80㎡这样装再生个二胎也不过时!

时间:8年前 (2018-03-01)来源:怀孕期阅读量: 485

导读:

合作请加微信:yczx-0662

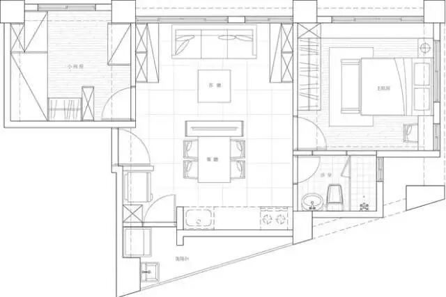
家里明年准备生二胎,装修新房的时候顺带就设计好了儿童房。80平米的房子不算大,但只有一家四口也是很温馨的。

客厅

虽然80平不算小,但是客厅的格局有些小尴尬,最后只能单独做个电视背景墙搁电视,顺便隔断了餐厅和厨房。但是电视买回来看得少了,我跟老婆两个人都看手机,孩子也就周末看个动画片,其实可以不必装。

落地窗很大,沙发只有横过来放才不显得突兀。沙发左右两边都做了储物柜,怕落灰都给封上了玻璃,做展示架挺好。

餐厅

电视柜的背后就是餐厅和厨房了,因为空间的问题被迫做了开放式的厨房,油烟还是很大的。

冰箱位置虽然有点远,但是不怎么占空间挺好的,算是半内嵌式。

做了一个隔断,采光真的是变差了。

主卧

被朋友笑称像是度假村的大床房,那也不错啊,采光很好,房间也够大,在床尾做了个衣柜,这种简约风不容易过时,简单搭配就很好看了。

儿童房

现在儿子7岁,就喜欢子母床,奈何价格有些贵,正好打算生二胎,就做了个高低床。

书桌也是一人一个,当然现在只有一个人能用。红色办公椅还是很好看的,书桌要买正式一点的,这样孩子能有该学习了的意识。

猜你喜欢

1.在阳春,这就是你未来的生活!

2.精品全能小户型,阳春人都买得起的房子!

3.阳春人注意了!苹果手机也爆炸了,现场照片吓人!

4.阳春人不要再随便加“附近的人”了,看完吓出一身冷汗…

最新文章

网友跟帖

关于我们 | 联系我们 | 版权申明 | 免责声明1111

本站所收录作品、热点评论等信息部分来源互联网,目的只是为了系统归纳学习和传递资讯!

免责申明:所有作品版权归原创作者所有,与本站立场无关,如不慎侵犯了你的权益,请联系我们告知,我们将做删除处理!

Copyright 2017-2018 怀孕期 版权所有 湘ICP备15012852号