当前位置:首页 > 怀孕饮食|孕妇不能吃哪些食物,孕妇不能吃哪些水果,怀孕初期吃什么好
时间:8年前 (2018-02-27)来源:怀孕期阅读量: 797

虽然流行语总是“过气”得很快,但是看到中年俩字,第一个想到的还是油腻二字吧?隔壁筑好房的小花安利的这篇中年大叔网友的推文会让你改观!什么叫好丈夫好爸爸,看他的新房你就能感受到……
【楼主寄语】
我是一个爱做饭的平凡中年大叔,在杭州奋斗几年了,总归想给家人一个温馨的窝,在选择房子时候就靠近儿子上学的地方,坐标杭州临平北,幸亏在G20之前购买的房子,不然现在都买不起了。
房子拿到后就开始装修了,给装修预留的费用还是很紧张的,本想40万搞定的,结果跑到45万了(泪奔!)在装修一开始比较纠结的就是房屋的结构,考虑家里有两个孩子,收纳东西的地方要多,储藏室也是必不可少的。只想着把空间的结构改好,住着舒服,不考虑墙面花多的费用,只在改用的柜子上花了费用。拆墙为了更合理的设计柜子,一拆一建改造费用就上去了。装修期间老婆怀孕,都是我一个人在忙乎。
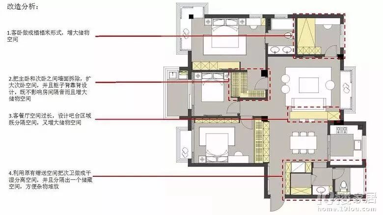
改造分析:
1.进门口区域增加储藏室,储藏室隐藏在鞋柜和餐边柜后面,门从干区位置开。
2.餐厅和客厅之间采用吧台来进行分割,靠近墙角位置又增加了客厅零食柜。
3.给主卧室增加了大排柜子。
收纳空间:
动线分析:
主要动线几种在客厅位置,这样更好的利用其他空间。
洗衣位置在阳台,洗晒更顺手
▲为了迎接二胎的到来,楼主选择在门口左边设置大面积鞋柜,大约可容纳80双。右边设置两边大镜子,并让强弱电箱隐藏在内。
▲玄关区和餐厅采用地砖,初衷仅仅是让打扫卫生更方便,楼主的心思细腻到小花无地自容啊!而地砖采用灰白进行交错,增加层次感,看起来更美观大气了。
▲弱电箱在下 ,强电箱在上,外采用镜面门,这个是一个比较隐藏的做法。
▲楼主家选择了暖色调的的墙面漆,素雅的背景色可以hold住其他各种颜色的后期软搭。P.S.楼主家采用的是芬琳漆涂料色号K486,电视墙采用石膏板做层次。
▲地板采用实木多层复合板,装修全部内价格是320/平。
▲虽然有点小贵,但地板的纹理特别美,楼主说,朋友来都很喜欢这个地板,这个钱花的真值。
▲客厅采用地板也会让小孩子感觉更温暖些。
▲房门门套采用到顶做法,相当于做了一个视觉延伸,看上去更加大气。门是2800一个复合材料,面做哑光白,也是一个质感加分项。
▲踢脚线8公分高,和门厂家一起定做。
▲电视柜和墙体一体的设计小花觉得特别赞,在这里也安利给正在纠结选设计方案的你,楼主也说道,这样就不用担心正是调皮捣蛋年纪的孩子在客厅里横冲直撞时磕到碰到了。凹进去的部分采用科定板制作。
▲楼主家的沙发是在家具工厂定制的,价格5k多,给大家参考。
▲这样造型的角几之前小花有给大家推荐过哦 >> 北欧单品大推荐
▼
▼
茶几推荐
图来源19楼ID:旖旎小凯
一个不够放2个,好搭配又方便
图来源19楼ID:琳琳渝立
图来源19楼ID:勿忘初心1123
购买推荐来自网友@旖旎小凯的秀家清单
RMB:382.76-886
TB链接:¥yzQl05fqKVZ¥
tb关键词:圆形茶几 北欧(几十到几百不等)
HAY 设计款
Don't leave me系列边几。
像一个带把手和支架的托盘,
方便拎来拎去,侧面更是萌萌哒!
售价:1699
宜家类似款
宜家这款格拉登托盘桌,风格相近
可做茶几哦,售价只需99元!
▲楼主是个爱做饭的大叔,集成灶烤箱蒸箱都不能少。厨房的各种小收纳更是尽然有序。答应小花,告别中年油腻,从拥有一个像楼主家这样的厨房开始!
P.S. 看到19楼网红宜家款收纳手推车了吗!
这款性价比高又不失颜值的手推车,小花可以在秀家贴中给你找出一打!厨房、餐厅、卫生间,家里每个角落都可以放下,最近刚搬了新家的美少女,也去宜家买了一个。回来跟我说:实用!买!
爸哪团宠小泡芙家也在用哦
▲冰箱放置正对着餐厅。
▲这个角度就可以看到,餐厅预留了大面积的柜子。
▲重点来了!餐桌是可以拉伸的,平时是1.6米,拉出来有2.2米的,过年时可以坐12个人。
▲来到卧室,小花被门口区域做得这一排L型柜体给震撼到了,太太太实用了吧。
▲转过来还有整面墙的柜子,最令人佩服的是,楼主家做完柜子后,卧室还留有80公分过道哦!
▲飘窗有60公分高,台面采用木板做的,好看又实用的家,盖章认定,不服来辩!
▲楼主在床头用了点花墙纸,最贵的材质了,要500多一卷,小花只能感叹,一分价钱一分货呀。
▲靠近墙面做了化妆台连着柜体,实用+10086。
▲暖男楼主,为了满足老婆专门定制的梳妆台。
▲中间黑色框是进主卫的移门,不占空间又比较美观。
▲楼主家双台盆也是满足老婆的愿望,现场制作柜体,柜门台面外定这样最省费用。
▲台盆边上做了收纳柜,实用。
▲榻榻米现场制作,上放草席垫。
▲书桌现场做,面贴科定板
▲地板直接铺进卧室,没有门槛石,感觉也很舒服哦。
▲为了避免无聊,楼主还在走廊这边做了一面照片墙,以后会更换成孩子们的照片。
不知大家是否和小编一样
看完被这位中年大叔暖到了呢~
来源:筑好房(hzjiaju) | 编辑 郑丹宁
宁波宝贝是宁波日报报业集团宁波晚报社精心打造的,面向0至12岁婴幼儿童,提供热点新闻、资讯服务、权威活动和赛事等的本土专业幼儿素质教育平台。将政府部门、教育工作者、家长、行业服务商等人群链接起来,形成互联网+时代的婴幼儿服务生态系统。合作电话:13586563615+微信
网友跟帖